Как изготовить приточный клапан в стену своими руками
Для изготовления простого устройства потребуются:
- решётка от ванной или раковины;
- фильтр (кусок поролона);
- утеплитель;
- пластиковая труба;
- клапан.
Пластиковая труба будет воздуховодом, кусок должен соответствовать толщине стены (можно предусмотреть небольшой запас). Оптимальный диаметр трубки – 10 – 12 сантиметров.

Слишком большой диаметр может привести к значительным теплопотерям
- С одной стороны трубки закрепляется решётка, это будет наружная часть устройства.
- Внутрь трубки вставляется свёрнутый рулоном утеплитель (минвата, пенополистирол). Для этой цели можно использовать трубный утеплитель. Толщина слоя должна быть около двух сантиметров, этого достаточно, чтобы предотвратить обмерзание.
- Следом в трубку вставляется поролоновый фильтр.
- Последним этапом станет установка клапана. Можно изготовить его собственноручно или приобрести готовое изделие в любом магазине вентиляционного оборудования.

Альтернативой проветривателю может стать решётка с подвижными жалюзи. При необходимости их можно вручную закрывать и открывать
Монтаж оконной вентиляции своими руками
Для самостоятельной врезки клапана необходимо учесть несколько важных моментов:
- работу лучше проводить в тёплое время года;
- створку окна придётся снять с петель;
- надёжно установить снятую конструкцию в наклонном или вертикальном положении;
- позаботиться об освещении;
- подготовить необходимый инструмент.
Действовать нужно аккуратно, соблюдать точность, при сверлении, пропиливании или подрезке не повредить уплотнитель створки. Клапан врезается в верхней части рамы.
Как установить с фрезеровкой?

Для этой работы понадобится:
- электрическая дрель или шуруповёрт;
- свёрла диаметром 5 мм и 10 мм;
- электролобзик;
- напильник;
- карандаш или маркер;
- саморезы;
- силиконовый герметик.
Кроме того, облегчит работу шаблон для разметки отверстий. Изготовить его можно самостоятельно из ДВП, оргалита или тонкой фанеры.
Процесс установки по этапам:
- Разметка. При помощи шаблона отметить контур врезки прибора и точки для сверления отверстий.
- Фрезеровка. Высверлить ряд отверстий, которые затем при помощи лобзика объединить в паз. Края пластика загладить мелкозернистым напильником. Оконные камеры, открытые в результате резки, заполняются герметиком.
- Установка планки. Тыльную сторону монтажной планки обработать герметиком, аккуратно прижать к створке и закрепить саморезами.
- Монтаж клапана:
- Внутренний блок установить на планку и защёлкнуть крепежи.
- Впускную крышку закрепить саморезами с внешней стороны рамы.
- Завершение. Промазать герметиком стыки и швы. Навесить створку.
При работе в открытом проёме окна обязательно используйте страховку!
Видео об установке приточного клапана с применением фрезеровки:
Установка вентклапана без фрезеровки

Установка клапана без перфорации пластиковой рамы выполняется легче, не требует специальных навыков и не занимает много времени.
Вам понадобится:
- острый строительный нож;
- шуруповёрт;
- маркер;
- линейка.
Набор для установки устройства – длинный и короткие уплотнители, заглушки для фиксации, саморезы – поставляются в комплекте с прибором. Проверяйте при покупке!
- Необходимо выбрать место расположения клапана в верхней части створки, проследив при этом, чтобы короб устройства не перекрывал фурнитуру.
- Сделать разметку карандашом или маркером.
- Затем острым ножом аккуратно надрезать в отмеченных точках уплотнитель створки и вынуть его из паза.
- В открывшийся паз поместить крепёжные дюбеля – один в центр и два по краям. Сняв защитную плёнку с клеящейся полосы, прижать прибор к створке. При этом следует проследить, чтобы отверстия в корпусе приточника совпали с положением дюбелей. Прибор крепится саморезами, которые вкручиваются через отверстия в установленные в пазе дюбели.
- После этого следует закрыть паз маленькими уплотнителями из комплекта.
Возможно, понадобится также заменить на более тонкий уплотнитель рамы.
Видео об установке приточного клапана на пластиковое окно без фрезеровки:
Регулировка притока воздуха

Если клапан имеет ручное управление, после завершения монтажа нужно настроить положение задвижки, отрегулировав приток воздуха. Обычно в правом положении циркуляция максимальная, левое – это полное закрытие щели.
В случае когда клапан оснащён автоматическими системами регулировки, лучше не вмешиваться в этот процесс: можно повредить устройство и свести на нет полезные функции прибора.
Управление проветриванием
Вентиляционный клинкет может иметь автоматический или ручной режим открывания. В последнем случает пользователь, изменяя положение шторки, самостоятельно добивается стабилизации потока воздушных масс. Он же следит и за длительностью проветривания (при недосмотре вполне возможно вымораживание помещения).
При автоматическом режиме открывания шторок возможно действие по двум схемам:
- Регулировка положения шторки определяется полиамидным датчиком – в условиях повышенной влажности проходное сечение увеличивается, а при пониженной влажности – уменьшается;
- Уровень подачи воздуха устанавливается на основании разницы давления внутри помещения и за его пределами, при этом диапазон открытия шторки определяет пользователь.
При всех плюсах умных автоматических проточных клапанов, они зачастую попросту не имеют функции полной блокировки проветривания. Тем более, что цены на них далеко не маленькие.
Критерии выбора проветривателя
Изучая особенности различных модификаций клапанов приточной вентиляции и разбираясь, какой вариант выбрать, стоит учесть основные критерии, оказывающие влияние на комфорт эксплуатации устройства:
- Пропускная способность – позволит оценить, какую скорость воздухообмена обеспечит приточный клапан, достаточно ли его для конкретного помещения, количества домочадцев, проживающих в нем.
- Рабочая температура – клапаны с металлическим воздуховодом часто промерзают. Выбирая изделие с пластиковой трубкой, вероятность промерзания существенно снижается.
- Тип регулировки – автоматический контроль над работой приточного клапана обеспечивает комфорт эксплуатации устройства. Возможность механической корректировки позволит изменить интенсивность входящего потока воздуха при резком перепаде температур.
Иногда домашние мастера самостоятельно изготавливают приточные клапаны. Это позволяет сэкономить средства, но не обеспечивает достаточного уровня комфорта эксплуатации.
Оконные клапаны и их виды
Приточные клапаны на окна отличаются функциональностью, размерами, компанией-производителем и еще массой критериев, но для того, чтобы четко ориентироваться, их можно разбить на группы.
По материалам, из которых они были изготовлены, выделяют:
- пластиковые;
- пластиковые с наличие плёнки по дереву;
Последний вид устанавливают соответственно на деревянные окна. Так конструкция выглядит гармонично и в тоже время технически продвинутой.
По способу управления:
- ручные;
- автоматические.
Наиболее прост в использовании автоматический тип. Он реагирует на влажность и давление в помещении, самостоятельно при этом изменяя уровень потока кислорода, снабжающего квартиру. В свою очередь ручной типимеет при себе небольшую веревку для регулировки и постоянно требует изменений. Из-за этого могут возникнуть проблемы. Уровень вентиляции изначально приходиться настраивать наугад, и если выставить его неправильно зимой, то произойдет промерзание, из-за чего система деформируется и прекратит функционировать качественно.
Установка приточного клапана на пластиковое окно
Самостоятельная установка приточных клапанов на пластиковые окна производится за считанные минуты. Для этого понадобится канцелярский нож, клапан, крепежные элементы, уплотнители, саморезы и дрель. Порядок работы:
- На оконной створке отрезать уплотнитель, для этого использовать клапан как шаблон.
- В точках крепления зафиксировать три крепежных дюбеля – два по краям и один посередине.
- С уплотнителя нужно снять защитную пленку.
- Клапан устанавливают на створку и фиксируют саморезами.
- Вместо штатного уплотнителя устанавливаются два коротких кусочка, которые идут в комплекте.
- На внешней части рамы вырезается уплотнитель шириной под клапан.
- Взамен удаленного уплотнителя вставляют тот, который есть в комплекте – он более узкий и обеспечит подачу свежей струи в помещение.
- Клапан приточного воздуха на пластиковые окна готов к работе.
Приточный клапан на пластиковые окна – регулировка
Вентиляционный оконный клапан оснащен встроенным регулятором, который позволяет менять интенсивность и направленность воздушного потока для формирования комфортного микроклимата. Распределение воздушных потоков при разных его положениях:
- Позиция «открыто» (центр). Воздух струится во всех направлениях.
- Позиция «открыто вниз». Воздух поступает в нижнем направлении.
- Позиция «открыто вверх». Воздух поступает в верхнем направлении.
- Позиция «закрыто». Воздух в жилище не поступает.

Нюансы установки приточных клапанов: что следует знать
Если вы решились установить клапан собственноручно, выбирайте фальцевый механизм. Установить его нетрудно, стоят такие системы не так дорого, зато вы сэкономите на вызове мастера. Как это сделать, сейчас поговорим.
Существует два способа установки клапана – с прибеганием к перфорации или нет. Рассмотрим оба варианта поэтапно.
Монтаж климатического клапана с перфорацией – пошаговая инструкция
Для начала подготовим инструменты для работы. Нам потребуются следующие приспособления: дрель, лобзик, напильник, сверла на 5-10 мм, шаблон для разметки контуров клапана, строительный нож и герметик.
| Иллюстрация | Описание действия |
![]() | Первый этап – разметка. Для этого берём направляющие той части клапана, которая будет установлена внутри помещения. |
![]() | Просверливаем отверстия под вентиляционные зазоры согласно разметки в створке. Края отверстия отшлифовать напильником. |
![]() | В готовом виде это выглядит так. |
![]() | Аналогичные пазы просверливаются и в раме. |
![]() | После подготовки отверстий и их шлифовки производится монтаж клапана. На наружную поверхность рамы установить внешнюю часть климатического клапана с козырьком. Фиксация детали происходит саморезами, уплотнение – герметиком. |
![]() | Вот так выглядит установленный клапан снаружи. |
![]() | А вот так изнутри. |
![]() | Управляя заслонкой клапана, можно добиться желаемого потока воздуха. |
![]() | Чтобы проверить нашу работу, достаточно приклеить небольшой кусочек полиэтиленовой ленты. Как вы видим, всё прекрасно работает, а поток воздуха направлен вверх! |
![]() | Не забываем, что в нашем распоряжении будет один клапан, состоящий из двух частей – внешней и внутренней. |
Этапы работ при монтаже оконного клапана без перфорации
Этот вид работ не требует использования ни лобзика, ни дрели. Нам потребуются: обычная крестовая отвёртка, канцелярский нож, линейка с маркером для разметки.
| Иллюстрация | Описание действия |
![]() | Возьмем всё, что необходимо для работы. |
![]() | Открыть оконную створку, разметить место, куда вы будете устанавливать приточный клапан. |
![]() | Убираем часть уплотнителя, который герметизирует щель между рамой и створкой. Старая прокладка срезается ножом с наплава рамы. |
![]() | На освободившееся место наклеить специальную прокладку, которая поставляется в комплекте с приточным клапаном. |
![]() | Снимаем защитную плёнку с клапана. |
![]() | Зафиксировать клапан на наплыве створки – устройство крепится сверху по направлению кронштейнами к окну. Закрепить клапан саморезами, пропущенными через кронштейны. |
![]() | Разметить положение установленного клапана на внутренней стороне рамы. |
![]() | В размеченных местах проделываем туже процедуру, что и снаружи, обрезаем старый уплотнитель. |
![]() | Заменяем фрагмент штатного утеплителя на более тонкий. |
![]() | После закрытия створки начинает работать штатная циркуляция. |
Назначение элемента
После монтажа пластиковой конструкции естественная циркуляция воздушного потока становится хуже. В комнату поступает меньше кислорода, а углекислый газ и испарения не могут выйти. Все это имеет последствия:
- Образование конденсата;
- Развитие плесени;
- Начинают появляться неприятные запахи;
- У жителей ухудшается состояние здоровья.
Эти проблемы решает простая установка приточной конструкции. Главная особенность такого решения – проветривание жилого помещения без сильной потери тепла. Благодаря небольшим отверстиям углекислый газ и влага покидают помещение, улучшая циркуляцию воздуха. Поддерживать хороший микроклимат в офисе или дома станет в разы легче, отчего прекратится развитие болезней и плесени.
Эффективность пластиковых окон не теряется, они все также работают на 100% и не позволяют уходить теплу даже в зимнее время. При этом воздух становится чище и свежее.
Чтобы изделие не было бесполезным, важно учитывать ряд особенностей при его установке. Только так можно добиться лучших результатов:
- Вытяжка должна корректно работать;
- Уличная температура должна быть не выше 5 градусов;
- Обязательное наличие естественного воздухообмена между комнатами. Чтобы этого добиться, необходимо открыть двери в помещении или покупать изделия с промежутком между полом и нижнем краем конструкции в 1 см;
- Обеспечение плотной герметичности у входного полотна.
Монтаж приточного клапана
Установка устройства – процесс пыльный и шумный, потому что приходится сверить стену. Для этого потребуется алмазная коронка и перфоратор. Мастера пользуются специальным инструментом – установкой алмазного бурения.
Пробуренное в стене отверстие обязательно очищают от пыли, для чего используют пылесос. Затем в отверстие вставляется теплоизоляционный материал. Обычно для этого сегодня используют скорлупу из минеральной ваты или полиуретана, которая продается длиною 1 м. Ее просто подрезают под ширину стены.
Далее в скорлупу вставляется цилиндр клапана. С внешней стороны к стене саморезами на пластиковые дюбеля крепится декоративная решетка. С внутренней оголовок с фильтрующим материалом.
Видео описание
В видео показано, как надо правильно устанавливать приточный клапан вентиляции в стене:
Так как разновидностей клапанов на рынке много, то способы их установки также разняться, но принцип один и тот же. К примеру, есть приборы, в цилиндр которых устанавливается теплоизоляционная скорлупа. То есть бурят стену по диаметру пластиковой трубы. Внешняя декоративная решетка не крепится к стене, а вставляется в торчащий конец цилиндра в виде крышки. То же самое и с оголовком.
Видео описание
В видео специалист рассказывает о конструкции проточного клапана, о принципе его работы и способе установки:
Клапан приточный оконный
Как было обещано выше, дадим небольшую информацию о вентиляционном клапане для пластиковых окон. Начнем с того, что герметичность пластиковых окон привела к большим проблемам. Многие производители тут же откликнулись на требования потребителей. Так в оконные рамы стали вставлять различные устройства, через которые воздух стал проходить в помещения. К примеру:
- стали использоваться профили вентилируемого типа;
- устанавливались ограничители открывания рам и фрамуг;
- использовались уплотнители с частичной проницаемостью воздуха через них;
- монтировались штапики, в конструкции которых присутствовала открывающаяся задвижка.

Ограничитель открывания рам пластикового окнаИсточник www.ufa-okoshko.ru
Оконные приточные клапаны получили большую популярность среди потребителей за счет высокой эффективности воздухообмена. На рынке они представлены тремя видами:
- Фальцевые. Это устройство врезается в раму окна. То есть установку можно провести на действующую оконную конструкцию, не меняя другие части или элементы. Есть у этой разновидности один недостаток – невысокая производительность до 5 м³/час. Но это самые дешевые клапаны.
- Щелевые. Эти модели устанавливаются в зазор между рамой и створкой. Именно это и усложняет процесс монтажа. В остальном приборы лучше фальцевых за счет более эффективного воздухообмена – до 20 м³/ч. Размер приточников ограничен только длиною зазора.
- Накладные. Эти приточные клапаны на пластиковые окна устанавливаются в процессе монтажа стеклопакета. И это с одной стороны минус. Другая отрицательная сторона – приспособления пропускают через себя много шума, поэтому их не рекомендуют устанавливать в домах. Но устройства обладают высокой производительностью – до 100 м³/ч. Их можно устанавливать как в глухих, так и в открывающихся окнах.
Видео описание
В видео рассказывается об оконном приточнике, как производится установка клапана в окно:
Коротко о главном
Что собой представляет приточный вентиляционный клапан, принцип его работы, для каких целей предназначен.
Преимущества и недостатки устройства, на что необходимо обратить внимание, выбирая его.
Технология установки, нюансы монтажного процесса.
Оконный приточник: разновидности, отличительные особенности, видео – как установить простейший клапан на пластиковое окно.
Нужно ли ставить приточный клапан?
Основа нормального микроклимата помещения – наличие эффективной системы вентилирования.
Воздух должен постоянно циркулировать – загрязненный с избытком углекислого газа удаляется через вытяжки, а чистый поступает извне.
Галерея изображений
Фото из
Предпосылки для установки приточного клапана
Герметичность и нарушение норм вентиляции
Вид приточного клапана на пластиковой раме со стороны улицы
Внешний вид устройства со стороны помещения
Специфика работы приточника
Открытая створка с приточным устройством
Приточный клапан на деревянной раме
Монтаж на пластиковое окно
При проектировании домов советской постройки особое внимание уделяли вытяжным каналам, а приточные воздуховоды не обустраивали. Поступление свежего воздуха происходило естественным путем – через щели в оконных деревянных рамах
Нормальная скорость воздуха в жилом доме или квартире – 0,15 м/с. Существенное повышение показателя провоцирует сквозняк, а понижение остановит воздухообмен
Металлопластиковые аналоги оснащены воздушными камерами в створках и рамах, герметичными стеклопакетами и уплотнителями по периметру.
Современные конструкции изолируют помещение от уличного шума и сохраняют тепло, но парализуют нормальное функционирование вентиляции. Как следствие, микроклимат ухудшается – воздух становится спертым, влажность повышается, люди испытывают нехватку кислорода, появляется черная плесень.
Старые несовершенные конструкции эффективно справлялись с задачей, обеспечивая достаточный приток воздуха даже зимой. Недостаток деревянных рам – плохая шумо- и теплоизоляция
Попытку восстановить циркуляцию воздуха путем открывания окна в режиме проветривания нельзя считать удачным решением по следующим причинам:
- плюсы «пластика» сводятся к нулю – эффективность теплоизоляции помещения снижается;
- вентиляция работает только при открытом окне, что особенно проблематично организовать в холодное время года или при ветряной погоде;
- приток воздуха неравномерный и бесконтрольный – появляются сквозняки.
Некоторые производители оконных систем учли последствия полной герметичности и усовершенствовали металлопластиковые конструкции.
Нарушение воздухообмена негативно влияет на здоровье и жизнедеятельность людей. На окнах появляется конденсат, откосы и стены покрываются плесенью – концентрация токсических веществ повышается
Специальная вентиляционная фурнитура:
- вентилируемые профили;
- ограничители открывания;
- частично воздухопроницаемые уплотнители;
- штапики с регулирующей задвижкой.
Для обеспечения притока воздуха через ранее установленное окно используется приточный клапан.
За счет вентиляционного клапана воздухообмен в комнате осуществляется без потерь тепла. Устройство защищает помещение от проникновения шума и пыли (+)
Особенности конструкций

В магазинах встречаются десятки различных моделей, но все они объединены одной конструкцией:
- Воздухозаборник. Продукт располагается с внешней стороны на пластиковой раме. Предназначен для приема и передачи воздушного потока с улицы. Монтаж занимает минимум сил и проводится за несколько минут.
- Чтобы осадки и пыль не просачивались внутрь помещения, сверху устанавливается специальный козырек.
- Для поступления воздушного потока в помещение, используется телескопический канал. По внешнему виду этот элемент напоминает специальную трубку. Она монтируется в корпус окна при помощи фрезерования и устанавливается благодаря монтажной гильзе.
- Поступающий воздух проходит через специальное отверстие и поступает во внутренний узел, который запускает его внутрь комнаты. Этот элемент состоит из форсунки, фильтра и регулятора. Установка осуществляется внутри помещения.
Рейтинг лучших приточных клапанов на 2021 год
Для ПВХ-конструкций
2-ое место: Air-Box Comfort
Модель обеспечивает нормативный приток воздуха, необходимый для стандартной комнаты в квартире. Хорошо сохраняет режим тепло- и шумоизоляции. Прекрасно совместима со всеми видами поворотно-откидных ПВХ-окон. Обеспечивает плавную регуляцию воздухотока.
| Наименование | Показатель |
|---|---|
| Страна-изготовитель | Китай |
| Ширина, мм | 44 |
| Высота, мм | 20 |
| Длина, мм | 355 |
| Вес, грамм | 75 |
| Цена, рублей | 500 |
Air-Box Comfort
Преимущества:
- Монтаж не требует фрезеровки окна;
- Уверенная защита от образования грибка и плесени;
- Поддержание нормативной циркуляции воздушных масс.
Недостатки:
Необходимость замены типового уплотнителя в окне на специальный.
1-ое место: Aereco EFM 1289
Стандартный саморегулируемый клапан для пластикового окна. В отличие от иных моделей, поступающие воздушные массы направляются не вертикально вверх, а под некоторым углом по отношению к окну, что препятствует возникновению наледи в холодное время. Обладает неплохим уровнем теплоизоляции, сохраняет установленный режим подавления звуковых вибраций.
| Наименование | Показатель |
|---|---|
| Страна-изготовитель | Франция |
| Ширина, мм | 50 |
| Высота, мм | 25 |
| Длина, мм | 390 |
| Вес, грамм | 120 |
| Цена, рублей | 1200 |
Aereco EFM 1289
Преимущества:
- Демократичная цена;
- Большой угол открытия заслонки;
- Увеличенная толщина.
Недостатки:
При инсталляции потребуется дополнительная фрезеровка окна
С регулируемой подачей
2-ое место: Maico ALD 125/125 VA
Популярная модель от европейского производителя. За счет тонкой настройки вариативности установки заслонки воздухообмен может быть настроен в пределах от 30 до 125 кубометров в час. В комплекте поставляет сетка от насекомых и дополнительная втулка. В конструкции применен новейший воздушный фильтр G-2.
Maico ALD 125/125 VA
| Наименование | Показатель |
|---|---|
| Страна-изготовитель | Германия |
| Воздухообмен, куб.м./час | От 30 до 125 |
| Воздушный фильтр | G-2 |
| Диаметр, мм | 125 |
| Глубина, мм | 500 |
| Цена, рублей | 11000 |
Преимущества:
- Хорошая комплектация набора;
- Элегантный внешний вид;
- В конструкции применены звукоизолирующие материалы.
Недостатки:
Малая обслуживаемая площадь – 30 квадратных метров
1-ое место: Вентс ПС 101
Современная модель клапана, призвана обеспечить эффективную циркуляцию кислорода как в бытовых помещениях, так и на производстве. Решетки изготовлены из качественного АБС-пластика. Специальная конструкция живого сечения позволяет производить равномерный и плавный забор воздушного объема. Благодаря сдержанному дизайну прекрасно вписывается в любой интерьер.
| Наименование | Показатель |
|---|---|
| Страна-изготовитель | Украина |
| Воздухообмен, куб.м./час | 45 |
| Воздушный фильтр | G-3 |
| Диаметр, мм | 103 |
| Глубина, мм | 305 |
| Цена, рублей | 1700 |
Вентс ПС 101
Преимущества:
- Экологичный и компактный корпус;
- Улучшенный фильтр;
- Тихая работа.
Недостатки:
Изоляция в комплект не входит, приобретается отдельно
С механической вентиляцией
2-ое место: КПВ-125 (КИВ-125)
Данный клапан обладает демократичной конструкцией и демонстрирует усредненные показатели в работе. Обладает достаточно шумным вентилятором. Управление клапаном упрощено: специально выведен шнур, с помощью которого регулируется положение заслонки. В холодное временя года модель показала хорошие теплоизоляционные свойства.
| Наименование | Показатель |
|---|---|
| Страна-изготовитель | Россия |
| Класс фильтра | Ф5 |
| Габариты, мм | 400х200х100 |
| Диаметр, мм | 133 |
| Цена, рублей | 2500 |
КПВ-125 (КИВ-125)
Преимущества:
- Демократичная цена;
- Сравнительно легкий процесс монтажа для специалиста;
- Отлично борется с конденсатом.
Недостатки:
Внешний вид может дисгармонировать с интерьером.
1-ое место: Vakio Kiv
Данный клапан предназначен для монтажа в составе стеновой системы. Механическая вентиляция обеспечивается за счет сверх тихого вентилятора, который равномерно нагнетает воздух внутрь. Встроенный фильтр не пропускает в обслуживаемое помещение мелкие фракции грязи и пух с пылью. Благодаря скромному дизайну отлично вписывается в интерьер.
| Наименование | Показатель |
|---|---|
| Страна-изготовитель | Россия |
| Класс фильтра | Ф6 |
| Габариты, мм | 470х222х94 |
| Диаметр, мм | 132 |
| Цена, рублей | 4900 |
Vakio Kiv
Преимущества:
- Отличное соотношение в категории «цена/качество»;
- Сверх тихий режим работы вентилятора;
- Гарантированное отсутствие сквозняков.
Недостатки:
Не обнаружено
Необходимость внедрения приточного клапана на пластмассовых окнах
Достоинства внедрения пластмассовых окон оценили многие жители квартир и личных домов. Эргономичные, красивые и удобные окна разрешают понизить утраты тепла и повысить звукоизоляцию помещения. Но наровне с преимуществами потребители отметили и один значимый минус – недочет вентиляции. Данный фактор усугубляет локальный климат помещения – возрастает влажность, воздушное место делается спертым, а люди, находящиеся в доме начинают испытывать недостаток кислорода. Как следствие, на стенках и откосах помещения возникает плесень, а концентрация токсических веществ увеличивается.

Для обыденного существования необходимо возвратить достаточную циркуляцию воздуха. Проветривание квартиры способом открывания оконных форточек сводит к нулю все плюсы герметичного «пластика» и значительно понижает эффективность подогрева. Решить вопрос разрешают приточные клапаны.
Приточный клапан – устройство, устанавливаемое на верхней створке окна в горизонтальном положении, которое делает вытяжную функцию. Клапан поддерживает лучший локальный климат в комнате, ликвидирует конденсат на стеклопакете и раме.
Необходимость внедрение приточного клапана на пластмассовых окнах обоснована рядом преимуществ:

- Световой просвет окна остается постоянным;
- В квартире не возникают сквозняки, как при ординарном проветривании;
- Приток свежайшего воздуха на достаточном уровне;
- В протяжении работы клапана нет теплопотерь, а шумоизоляция помещения остается на прошедшем уровне;
- Возможность регулировать работу клапана;
- Простота установки и эксплуатации.
Преимущества и недостатки данного устройства
Отметим среди преимуществ следующие достоинства приточных систем:
- Они исключают возможность сквозняков;
- Незаметно и непрерывно обеспечивают приточку свежего воздуха;
- Понижая влажность воздуха предупреждают образование гнили и плесени;
- Несущественно снижают звуко и теплоизоляционные характеристики окна;
- Благодаря простоте монтажа, допускается производить установку некоторых клапанов самостоятельно;
- Органично и естественно смотрятся на окнах не нарушая общего дизайна.
Но имеются у устройств и серьезные недостатки, дающие повод задуматься о целесообразности предлагаемой системы воздухообмена. Перечислим их:
- Монтаж многих моделей потребует вносить изменения в конструкцию окна, ухудшает теплоизоляцию и нарушает целостность;
- Отзывы владельцев свидетельствуют, что клапана могут подвергаться обледенению, при уличной температуре -20°C и ниже. Даже если этого не случается, зона холода ощущается около клапана, при полностью закрытом притоке;
- Фронтальный ветер в сторону фасада может вызывать свист;
- Фильтры достаточно примитивные и не всегда справляются с предназначением, пропуская в помещение достаточно много уличной пыли и запахов;
- При отсутствии в квартире вытяжных каналов, такое устройство работать не будет;
- Не функционирует он и при высоких уличных температурах, начиная обеспечивать заметную приточку только когда на улице холоднее +5°C;
- Фильтры часто не справляются со своей задачей, и в помещение попадает много пыли;
- Клапан начинает функционировать только при температуре ниже +5°C, при более высоких значениях перепад давлений в квартире и на улице слишком мал;
- Если в квартире нет вытяжной вентиляции, приточный клапан не работает.
Пользователей, у которых нет в квартире вытяжных каналов часто интересует, производится ли приточно-вытяжной клапан для пластиковых окон, отечественными или европейскими производителями. Однозначно нет, оконных клапанов имеющих функционал притока-вытяжки не существует. Комплексно решить задачу воздухообмена может приточно-вытяжная установка серии Vakio Window. Она монтируется на окно, подогревая приточку, за счет тепла удаляемого воздуха на принципе рекуперации.
До похода в магазин вентоборудования, можно уточнить, насколько эффективно будет работать оконный клапан в вашей квартире. Проверьте плотность закрывания дверей и если между полом и дверным полотном отсутствует сантиметровый зазор, приоткройте их. Теперь поставьте оконную створку в режим проветривания и проверьте чтобы была закрыта входная дверь. Приложите листок бумаги к вытяжной решетки кухни или туалета. Залипание листка на решетке – свидетельство того, что оконный клапан в вашей квартире зимой будет успешно работать. Чтобы он работал и летом, на вытяжке потребуется установить осевой вентилятор, который будет компенсировать отсутствие перепадов давления.
Виды клапанов для окон ПВХ
Приточные клапаны различаются по конструкции и способу управления — от этого зависит их стоимость, эффективность, сложность установки и обслуживания.
Ручные и автоматические
Поток воздуха, идущий через клапан, в зависимости от конструкции устройства, может быть постоянным или регулируемым. Второй вариант более удобен в использовании, поэтому гораздо популярнее первого. Регулировка интенсивности проветривания может осуществляться вручную или автоматически.
Ручной предполагает наличие специальной задвижки, которая открывает и закрывает доступ воздуха в помещение и регулирует пропускную способность устройства.
Плюсы:
- низкая стоимость;
- простая конструкция;
- возможность полностью перекрывать доступ воздуха с улицы и открывать клапан, когда нужно.
Минусы:
- для эффективной работы нужно участие человека, чтобы вовремя открыть и закрыть задвижку;
- человек управляет им, полагаясь на интуицию и собственные ощущения, без учета влажности воздуха.

Клапан с автоматическим управлением способен выполнять свою функцию без участия человека, проветривая помещение либо на определенный объем воздуха, либо до достижения комфортных показателей влажности.
Плюсы:
- клапан работает, даже если никого нет дома;
- достаточно выставить нужные настройки и можно забыть об устройстве;
- устройство способно постоянно поддерживать хороший микроклимат в помещении.
Минусы:
- высокая стоимость;
- некоторые модели не имеют возможности для полного отключения вентиляции.
Виды устройств по конструкции
Конструкция приточного клапана определяет способ его установки. Есть несколько видов:
- фальцевые (без фрезеровки);
- щелевые (с фрезеровкой);
- накладные;
- встроенные в ручку.
Фальцевый приточный клапан — самый простой в установке. Его монтируют в пространство между створкой и рамой. В комплект входит более тонкий уплотнитель, который ставят только в месте крепления клапана, таким образом, получается небольшая щель, длиной от 17 до 40 см. Клапан состоит из двух частей: воздухозабора (козырька), который устанавливается на улице, выпускной части — она монтируется изнутри. Поток воздуха можно регулировать. Пропускная способность устройства — от 5 м³/час.
Плюсы:
- невысокая стоимость;
- простой монтаж своими руками;
- при необходимости легко демонтировать и вернуть створке герметичность.
Минусы:
- сравнительно низкая пропускная способность;
- подходит только для окон с открывающимися створками.
Фальцевый клапан.
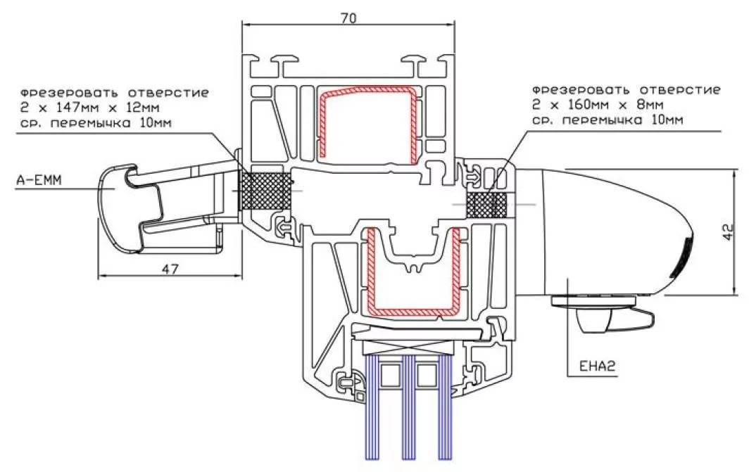
Есть более сложные в монтаже устройства — щелевые, для их установки необходимо фрезеровать створку. Они подходят для поворотно-откидных и глухих створок. Но во втором случае придется вырезать отверстия и в металлической армировке, которая расположена внутри рамы.
Такие конструкции могут состоять из одного цельного блока или двух раздельных: один из них устанавливается на улице, второй — в помещении. Для их монтажа требуется сделать отверстия вытянутой формы в верхней части наплава створки и наплава рамы. Для этого желательно иметь шаблон.
Щелевой клапан
Пропускная способность щелевого клапана — до 40 м³/час. Этого достаточно, чтобы в помещении, где проживают два человека, всегда был свежий воздух.
Плюсы:
- высокая пропускная способность;
- подходит для любых окон, в том числе глухих;
- большинство моделей оборудованы системами для сохранения звукоизоляции и фильтрами.
Минусы:
- стоит дороже, чем фальцевый;
- для установки необходимо нарушить целостность рамы и створки;
- сложный в монтаже — установку стоит доверить специалистам.
Принцип работы клапана установленного с фрезеровкой.
Наиболее эффективный приточный клапан — накладной или встроенный. Он способен пропускать до 100 м³/час свежего воздуха. Для жилых помещений это слишком интенсивный поток, поэтому такие устройства используются в крупных и многолюдных помещениях. Их установку необходимо запланировать до монтажа окон, так как прибор встраивается в пространство для стеклопакета и размер створки необходимо подогнать под габариты устройства для вентиляции.

Еще один вид устройств для вентиляции — оконные ручки с приточными клапанами. По сути это те же щелевые, но пропускная способность их гораздо ниже, так как поток идет не через цельную щель в створке, а по трубкам, которые соединяют улицу с помещением.
Для установки необходимо снять старую ручку, просверлить сквозные отверстия по шаблону, вставить трубки и зафиксировать части ручки. Поток воздуха регулируется задвижкой.
Оконная ручка с вентиляцией.













































































