Выбор
Прежде чем выбрать нужный инструмент, следует знать основные критерии, по которым ленточные пилы различаются:
- размеры пропила;
- какое полотно задействовано;
- энергопотребление;
- мощность движка;
- компактность параметров;
- вес;
- возможность настройки;
- вид подачи материала.


Оборудование может быть различным, в соответствии с этим и варьируются цены на него.
Сама лента также может менять скорость движения от 12 до 98 метров секунду.
Также агрегаты различаются по параметрам натяжения ленты. Лента имеет мощность от 2100 Вт и может достигать 3000 Вт и даже больше.


Визуально несложно определить при покупке: если лента имеет крупные зубья, это означает, что пилит она на большую глубину. Есть ещё один показатель – это разводка зубьев, она непосредственно влияет на эффективность функционирования пилы. Для небольших работ вполне достаточно профиля в виде волны. Самым эффективным вариантом считается расположение зубьев попарно.
Модели
Очень хорошие результаты показывают чешские пилы по металлу. Диаметр их рабочей части может быть любым — это зависит от потребностей конкретного заказчика (чаще всего – от 300 мм). Специалисты рекомендуют применять станки фирмы Bomar. Также можно присмотреться к изделиям компании Pilous-TMJ. Так, ARG 105 Mobil потребляет 550 Вт, способна работать под углами от 45 до 90 градусов, рекомендуемое сетевое напряжение — 380 В, а совместимые диски могут иметь диаметр до 25 см. В текущем году лучшими монтажными пилами считаются:
- Metabo CS 23-355;
- Makita LC1230;
- Elitech ПМ 1218;
- DeWalt D282720;
- AEG SMT 355.
Особенности выбора
Сегодня на рынке представлен широкий выбор различных вариантов данного инструмента. Какие отличия есть у этих изделий:
- размеры и форма зубьев;
- габариты режущего полотна;
- разновидность стального сплава, из которого произведено полотно;
- форма рукояти.
Даже в том случае, если какой-то из названных выше параметров будет изменен, ножовка радикально изменит свои эксплуатационные характеристики. Эти факторы нужно учитывать, подбирая приспособление для различных целей.
Размеры зубчиков
От этого параметра зависит скорость и уровень качества работы. Для определения этого показателя специалисты разработали специальное обозначение TPI. Оно показывает, сколько зубчиков приходится на один дюйм полотна. Данная характеристика, как правило, указывается в описании инструмента. Также нередко этот показатель указан на поверхности рабочего полотна.
- Инструмент с большими зубьями обеспечивает грубый и быстрый распил. Такие ножовки часто применяются для благоустройства придомовой территории (распил дров, лишних веток и т. д. ). В этом случае показатель TPI варьируется от 3 до 6.
- Для конструкций, которые должны быть распилены ровно и аккуратно, подходят приспособления с TPI от 7 до 9. Как правило, такие ножовки применяются для обработки ламината, ДСП и ДВП. Этот инструмент менее производителен, чем пилы крупнозубчатого типа.
Столярные приспособления подбираются по размерам зубьев. Так, для обыкновенной древесины используется крупный и мелкий вид пил, а для более «нежных» ремонтных и строительных материалов вроде ДВП требуется мелкозубчатое приспособление. Кстати, сегодня в магазинах встречаются и такие обозначения, как «для гипсокартона», «для древесины» и т. д.
От формы же зубчиков зависит назначение инструмента:
- Ножовка, предназначенная для создания продольного распила, имеет треугольные зубчики со скошенными углами. С виду они напоминают крючочки, заточенные по обеим сторонам. В этой связи инструмент проскальзывает вдоль древесных волокон и режет полотно очень ровно, практически без каких-либо зазубрин.
- Пила для создания поперечных распилов обладает зубчиками, форма которых похожа на равнобедренный треугольник. Такой инструмент можно применять лишь для обработки полностью сухого дерева.
- Комбинированная разновидность ножовок оснащена обоими типами зубчиков, которые находятся друг за другом.
Во многих современных пилах зубья чередуются с пустыми местами, которые позволяют своевременно избавляться от ненужных грубых волокон, остающихся при работе.
Выбираем сталь
Чтобы ножовка прослужила как можно дольше, нужно останавливать свой выбор лишь на качественных стальных сплавах, которые использовались для изготовления режущего полотна. В идеале материал должен быть нержавеющим.
Зубчики бывают обыкновенными и калеными. Первые можно затачивать и самостоятельно, каленые же зубья являются одноразовыми.
Длина ручной пилы по дереву
Данная характеристика зависит от шага и размера зубчика ножовки.
- миниатюрные модели имеют частые и маленькие зубья, длина полотна такого инструмента не более 350 мм;
- ручная пила универсального типа характеризуется зубчиками средних размеров и длиной не более 550 мм;
- широкий инструмент обладает крупными зубчиками и большим шагом. Длина полотна такого инструмента более 600 мм.
Помимо длины, пилы отличаются и формой рабочего полотна. Обыкновенная ножовка имеет форму прямоугольника, одна из сторон которого заужена. Этот инструмент является универсальным.
Пилы с закругленным полотном предназначены для спиливания веток и иных предметов на некотором отдалении: этот инструмент очень легкий и запросто скользит по дереву.
Форма рукояти
От данного элемента зависит удобство эксплуатации ножовки. Приспособление должно сливаться с рукой исполнителя и быть максимально удобным. В качестве материала для ручек применяется пластмасса, приятная для кожи. Важный момент — вспотевшие руки не должны скользить по поверхности материала. Для предотвращения этого «неудобства» в конструкции рукояти есть специальные бороздки и углубления, а также вкладка из прорезиненного материала.
Особенности
Ленточная пила – это главный инструмент, который применяется для работы с самыми разными материалами. Ленточная пила состоит из гибкой закольцованной ленты, имеющей зубья с одной стороны. Ставится лента на шкивы, которые присоединены к движку.
Пропилы можно делать самой разной конфигурации, что даёт возможность применять подобный инструмент в самых разных областях: от производства мебели до изготовления строительных материалов. Разновидности ленточных пил:
- зубчатые;
- беззубые;
- электроискрового принципа действия.
Инструмент этот отличается от простых ножовок тем, что он имеет замкнутый принцип действия. Резать такими устройствами можно практически любой материал.
Агрегаты, работающие на трении и электроискровом воздействии, несколько отличаются от классических ленточных пил.
При выборе устройства следует знать, как функционирует подобный агрегат. Например, ленточная пила по металлу – это распил всякого рода заготовок. Наличие поворотных механизмов даёт возможность делать рез под любыми углами. Критерии выбора ленточных пил:
- мощность движка;
- сколько весит агрегат;
- каковы размеры шкивов.


Дифференциация оборудования обычно бывает такая:
- диаметр шкива 355 мм – считается лёгким станком;
- диаметр шкива 435–535 мм – средний;
- если диаметр превышает 535 мм, тот такой станок считается тяжёлым.
Первый тип станков оборудуется движком в 1,9 квт, если агрегат более массивный, то его мощность может достигать 4,2 квт.
Особые стандарты необходимы для полотна. При резке металла используются также биметаллические полотна, они делаются из материалов нескольких видов. Чаще всего – это:
- пластичная прочная сталь;
- проволока, сделанная из особой высокопрочной стали.


Большой популярностью пользуются полотна, в основе которых находится углеродистая сталь. Ленточные полотна варьируются также:
- с конгруэнтной плотностью Constant hardness;
- с гибким основанием и прочными зубьями Flex back — Hard Edge;
- калёные полотна Hard Back.
Первые полотна, у которых коэффициент твёрдости идентичен, могут работать на шкивах минимальных диаметров; при этом прочность их может достигать 49 единиц (шкала HRc).
Пилы второго типа, которые сделаны из пластичной стали, имеют твёрдый зуб и обладают достаточно сложной структурой. Закаляется только верхний край режущего зуба (твёрдость 64–66 по шкале HRc).
И, наконец, третий вид является самым прочным (твёрдость до 68 по шкале HRc).
Твёрдость зубьев обеспечивает уровень производительности инструмента, его стойкость.


Советы по эксплуатации
При обращении с ножовкой следует соблюдать правила техники безопасности. Около тисков следует располагаться вполоборота, при этом левую ногу немного отставляют вперед, чтобы она располагалась приблизительно по линии обрабатываемой заготовки, и опирают на нее все туловище.
Ножовку удерживают правой рукой, рукоять должна упираться в тыльную сторону кисти, при этом большой палец должен располагаться на рукоятке, оставшимися инструмент поддерживается по нижней оси.
Во время нарезания ножовку размещают ровно горизонтально, все движения руками должны быть как можно более плавными, без резких рывков. Ножовка должна получать такой размах, чтобы была задействована большая часть полотна, а не одни только его центральные участки. Нормативная длина оптимального размаха примерно составляет две трети от длины всего инструмента.
Инструмент работает с приблизительной скоростью 40–60 заходов в одну минуту (имеются в виду заходы взад-вперед). Плотные материалы пилят с чуть меньшей скоростью, а мягкие – быстрее.
Ножовками ручного типа все работы выполняют без использования системы охлаждения. Для того чтобы уменьшить сопротивление материалов и силу трения, используют смазку из графитовой мази, а также сала, смешанных в пропорции 2 к 1. Подобный состав держится довольно длительно.
Во время пиления полотно периодически заводит в сторону. Как следствие, зубья начинают крошиться или происходит поломка инструмента. Помимо этого, на разрезаемом предмете формируется прорезь. Основной причиной таких неприятностей бывает недостаточное натяжение пильного полотна либо неумение правильно орудовать пилой. Если полотно ушло вбок – лучше начать распил с другой стороны, поскольку попытка выправить скос в большинстве случаев заканчивается поломкой инструментов.
При неграмотной закалке зубья начинают ломаться. Помимо того, повреждение резцов происходит как следствие чрезмерного нажима на инструмент, особенно часто такое происходит при работе с зауженными заготовками, а также если в материал вкраплены различные посторонние вкрапления твердой структуры.
Если произошла поломка хотя бы одного-единственного зубчика – продолжать пиление не имеет смысла: это приводит к поломке соседних резцов и затупливанию всех оставшихся.
Чтобы восстановить пилящую способность ножовки, на шлифовальном станке стачивают соседние с ними зубья, удаляют застрявшие остатки сломанного и продолжают манипуляции.
Если во время работы поломалось полотно, то ножовка уходит в прорезь, поэтому заготовку переворачивают и начинают пилить другим инструментом.
О том, как выбрать ножовку по дереву, смотрите в следующем видео.
Виды ножовок по дереву — главный критерий при выборе
У хорошего мастера в арсенале должно быть минимум две ножовки по дереву. Одна пила применяется для распила сухих досок, а второй инструмент — для сырых (при обрезке фруктового сада). Различаются они по разводке и форме зубьев. В зависимости от вида запланированных работ, необходимо приобретать соответствующего типа режущий ручной инструмент. Для того выясним, какие виды ножовок по дереву выпускают производители разных стран.
- Классический вариант — это обыкновенная пилка, которая состоит из закрытого типа рукоятки и полотна разной длины. Такой вид ножовок еще называют универсальными, так как они подходят для выполнения разных работ, связанных с обработкой дерева
- Выкружная — это узкоспециализированный вариант режущего приспособления, который предназначен для вырезания в листовых деревообрабатывающих материалах разных форм и узоров, например, когда в фанере нужно вырезать круглое отверстие. Выкружные пилки еще называют узкими, так как они имеют зауженную конструкцию полотна и острый носик
- С обушком, обушковые или шиповая пила — это еще одна разновидность классического режущего инструмента, которая также состоит из полотна и рукоятки. Отличие от классики в том, что полотно имеет одинаковый размер (без зауживания), а также мелкий зуб. Предназначен такой тип инструмента исключительно для работы со стуслом, когда нужно получить соответствующий угол пропила на деревообрабатывающем материале. Применяется для работы с ламинатом, а также с плинтусами
- Лучковая — она больше напоминает ножовку по металлу, только имеет больший размер каркасной части, а также полотно с большими зубьями. Применяется в слесарных мастерских, а также для отпиливания веток и сучков с деревьев. Такое название инструмент получил по той причине, что имеется схожесть со старинным оружейным инструментом — луком, стреляющим стрелами
- Наградка — узкоспециализированная разновидность ручных ножовок, применяющихся в столярных и слесарных мастерских. Такой тип инструмента напоминает рубанок, так как присутствует две рукоятки. В нижней части к основанию крепится режущее полотно с мелкими зубьями, что позволяет получать точные пропилы на досках, брусьях и прочих аналогичных материалах
- Складная — это модернизированная версия ножовки, которая является отличным решением для туристических походов. Она складывается, что является ее главным преимуществом
Зная о том, какие же виды ножовок по дереву бывают, и чем они отличаются, можно для себя решить, какой тип инструмента подойдет для выполнения тех или иных запланированных действий. Учитывая большое многообразие рассматриваемых инструментов, одной из самых важных пилок по дереву в хозяйстве является классическая.
Это интересно! В отличие от работы ножовкой по металлу, где пиление выполняется путем прикладывания усилий от себя, с пилой по дереву другая ситуация. Работа по дереву осуществляется в двух направлениях, то есть пиление выполняется в направлении от себя и к себе.
Чтобы правильно выбрать ножовку по дереву, необходимо учитывать такие главные показатели:
- Размер полотна, а точнее его длина. От длины зависит не только возможность распиливания заготовок большого диаметра, но еще и скорость достижения результата, а также удобство выполнения работ
- Материал стали, из которой изготовлено полотно. От этого параметра зависит эффективность и срок службы инструмента
- Зубья и их размер — большие зубья еще не означают, что инструмент лучше. Чем больше зуб, тем проще распиливать сырые заготовки, но тем ниже качество распила
- Держатель или рукоятка — от нее зависит удобство эксплуатации инструмента. Чем удобнее рукоятка, тем легче управлять инструментом
https://youtube.com/watch?v=doEVbY1kKMQ%3F
Итак, зная основные параметры для выбора, купить лучшие ножовки по дереву для домашнего мастера не составит большого труда. Среди множества разновидностей режущего инструмента, будет трудно выбрать подходящий вариант без соответствующей помощи. Обратиться за помощью можно к продавцу инструмента в строительном магазине, но только в итоге вы купите такую ножовку, за которую продавец получит процент от ее продажи. Если необходимо купить хорошую ножовку по дереву, тогда советы и рекомендации из материала помогут принять правильное решение.
Какую ножовку выбрать
Если ножовка покупается для плотницких работ, подойдут изделия с крупными зубьями
Чтобы покупка такого инструмента принесла только позитивные эмоции, следует знать правила, по которым его нужно выбирать:
Определите, как часто будет использоваться ручная пила. Ножовка с калеными зубьями подойдет для регулярных распиловочных работ. Купив такую “помощницу”, можно не переживать о разводе и заточке зубьев. Модели с незакаленной режущей кромкой можно использовать не так часто. при постоянном пилении они быстро придут в негодность.
Цена. Качественные модели от популярных компаний продаются дороже. Но известные бренды дают длительную гарантию на свои изделия. Если инструмент приобретается для разовых работ, можно купить ножовку попроще.
Равномерность полотна – важный параметр. Для этого в магазине при осмотре инструмента, аккуратно согните его и отпустите. Если появились даже небольшие изменения в точке сгиба, то металл обладает низким качеством и быстро придет в негодность. Длина полотна влияет на возможности применения ручной пилы. От этой величины зависит, как будет использоваться инструмент. Чем полотно длиннее, тем больше его пружинистость. Поэтому такие ножовки непригодны для обработки дуба, клена, ясеня или других твердых сортов древесины.
Если ножовка покупается для плотницких работ, подойдут изделия с крупными зубьями. Мелкозубчатое полотно пригодится для столярных
Очень важно, чтобы на полотне были нанесены сантиметровые и миллиметровые деления. Такая шкала поможет не отрываться от рабочего процесса в поисках линейки.
Иногда производители дополняют ее подложкой для пальцев из прорезиненного материала. Такая деталь не даст появиться мозолям на руках.
Материал ножовки
Ножовки по древесине очень долго не тупятся и дают ровный срез
Чаще всего полотна для пил делают из стали. Она может быть холоднокатанная, легированная или инструментальная. Последняя является самой популярной. Некоторые ручные инструменты покрыты тонким слоем тефлона. Этот материал снимает трение во время пиления и защищает металл от ржавчины.
Немаловажно и качество зубьев. Закаленная режущая кромка лучше подойдет для обработки сырого дерева
Твердость зубцов у таких ручных пил больше обычных в 7-8 раз.
Поэтому эти ножовки по древесине очень долго не тупятся и дают ровный срез. Такие модели нельзя повторно затачивать, что очень неудобно. Это значит, что после того как пройдет срок службы, инструмент придется выкинуть.
Узнать, что в магазине перед вами ножовка с каленым режущим краем легко. Ее полотно отличается черным цветом. Это лучшая пила для распила любого вида дерева.
Форма и размер зубьев
Специалисты рекомендуют покупать модели с зубчиками от 6 до 8 мм
Скорость реза и аккуратность при распиле будет зависеть от зубчиков пилы. Чем такие детали меньше, тем чище будет работа. Но при использовании этого инструмента будет затрачено больше времени. Выполнить распил быстрее позволит ножовка с крупными зубьями.
Специалисты рекомендуют покупать модели с зубчиками от 6 до 8 мм. Опилок при ее использовании будет намного больше. При работе с ламинатом, ДСП, МДФ и т.д. выбирайте пилы с зубцами не больше 3 мм. Зуб ножовки может быть:
- Долотообразным. Используется для выполнения продольного реза. Выглядит как треугольник с разными сторонами. Заточка в нем идет поперек полотна.
- Кинжальным. Работает в любом направлении ножовки. Зуб легко узнать по внешнему виду. Он похож на треугольник с равными сторонами.
- Универсальным. К ним относятся трехгранные зубья заточенные 3D методом. Они легко пилят в разных направлениях.
Для разреза элементов отделки и тонких материалов подойдет пила с шагом от 9 до 15 мм. Детали среднего размера распиливаются инструментом с 7 или 9 зубцами.
Виды, особенности, назначение
Ручная ножовка используется для работы с древесиной. Однако, этим ее задачи не исчерпываются. Существует большое количество задач — от чистой нарезки мелких элементов (подгонка штапика или наличников, выпиливание точных деталей) до грубой разделки бревен или досок на части. Все эти вопросы решаются при помощи разных типов ручного инструмента, обладающего собственными признаками и возможностями.
Мнение эксперта
Левин Дмитрий Константинович
Специфическая особенность большинства ножовок заключается в положении полотна. Оно свободно и удерживается в заданной плоскости только собственной упругостью металла. Иногда это становится причиной возникновения брака. Для усиления полотна придуманы обушковая пила (с усиливающим элементом, установленным на верхней кромке широкого полотна), до лучковой пилы (с полотном, натянутым между двух опорных планок, стянутых в верхней части через распорку). Кроме этого, есть пилы с толстым полотном, обладающие увеличенной жесткостью и устойчивостью к поперечным нагрузкам.
Все разновидности предназначены для выполнения отдельных задач. Для чистого реза выбирают инструмент с мелким (мышиным) зубом, для продольного или поперечного пиления имеются разные способы заточки зубьев. Есть также универсальные виды, способные выполнять большое число операций. Домашние мастера обычно выбирают такие ножовки, а в комплект к ним специальные модели, рассчитанные на решение специальных задач.
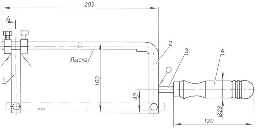
Ручная ножовка по металлу: конструкция инструмента
Инструмент для работы с металлом имеет простую конструкцию. Он похож на скобу, между концами которой в натянутом положении зафиксировано полотно. Приспособление состоит из рамы, режущего элемента и рукоятки.
Конструкция ножовки: 1 – стойка; 2 – рамка-держатель; 3 – хвостовик; 4 – ручка.
Рама предназначается для крепления полотна. Она может быть выполнена из разных материалов. Для распила плотных металлических заготовок применяются рамы, изготовленные из композитов высокой прочности. Конструктивное исполнение элемента определяется исходя из условий его использования. Если часто возникает необходимость производить распил в труднодоступных местах, следует приобретать небольшое приспособление, которое дает возможность регулировать наклон полотен.
Режущая часть представлена тонкой стальной лентой. Полотно установлено в раму таким образом, чтобы зубчики находились с противоположной стороны от рукоятки. Оно является самым хрупким элементом конструкции, поэтому при выполнении распила требуется действовать особо внимательно и аккуратно, поскольку небрежное отношение может привести к поломке изделия.
На режущем полотне располагаются зубчики клиновидной формы
При выборе приспособления следует обратить внимание на то, подвергались ли резцы закалке, благодаря которой увеличивается срок эксплуатации и производительность инструмента. Это также будет влиять на решение вопроса, как заточить ножовку (с информацией можно ознакомиться в интернете)
Предпочтение лучше отдавать каленым, выполненным из никелированной стали и имеющим темный окрас или биметаллическим, окрашенным в любой тон вариантам.
Обратите внимание! Для распила твердых изделий следует выбирать полотна с небольшими резцами, а для мягких заготовок рекомендуется использовать режущий элемент с крупными зубчиками.
Удобство и безопасность при эксплуатации ножовки по металлу обеспечивается рукояткой
Рукоять является важной деталью инструмента, благодаря которой обеспечивается удобство и безопасность при эксплуатации ножовки. Лучшей является двухкомпонентная ручка, которая оснащена прочной резиной и специальными мягкими вставками
Рукоять может быть размещена сбоку или сверху ножовки
Лучшей является двухкомпонентная ручка, которая оснащена прочной резиной и специальными мягкими вставками. Рукоять может быть размещена сбоку или сверху ножовки
Рукоять является важной деталью инструмента, благодаря которой обеспечивается удобство и безопасность при эксплуатации ножовки. Лучшей является двухкомпонентная ручка, которая оснащена прочной резиной и специальными мягкими вставками
Рукоять может быть размещена сбоку или сверху ножовки.
Сабельная пила: профессиональная или бытовая
Если использование пилы будет ограничиваться только решением бытовых задач от случая к случаю, то лучше выбрать инструмент, предназначенный для эксплуатации в быту. Модели класса «хобби» от известных производителей ничуть не хуже по качеству. Они имеют набор всех необходимых опций, а также отличаются небольшим весом и имеют хорошую стоимость.
Единственное, что нужно учесть, это то, что такие модели не предназначены для постоянного длительного использования, поэтому не подойдут для выполнения большого объема работ.
Дополнительные параметры, которые требуют внимания при выборе
От этих параметров зависит качество работы инструмента:
- При качественном соединении пилки к штоку полотно не должно болтаться.
- Чем меньше вибрации, тем комфортнее будет работать с пилой, а усталость от работы наступит не так скоро. Очень хорошо, если пила оборудована специальным балансиром, который гасит колебания от вибрации.
- Слишком большой уровень шума при работе может говорить о некачественной сборке. Чем меньше шумит инструмент при включении в сеть, тем лучше.
- Качественные агрегаты от известных производителей обычно имеют сетевой шнур, длина которого составляет не менее 3 м. Чем меньше длина шнура, тем чаще вам придется пользоваться специальной переноской, позволяющей включать пилу на значительном расстоянии от розетки.
- Если вы выбираете аппарат из категории более дорогих моделей, предназначенных для профессионального использования, обязательно убедитесь в том, что его будет удобно держать в руках.
Сабельная пила характеристики
Устройство
В отрезной пиле, призванной резать сталь, основную работу выполняет зубчатая замкнутая лента. Для ее изготовления применяют так называемые быстрорежущие стали. Ножовочные системы оснащают прямолинейным полотном, жестко фиксируемым на время работы. Привод пилорамы делается как ручным, так и электромеханическим. Ножовочные установки востребованы в мелких промышленных предприятиях и в цехах предварительной заготовки металла.

Сложнее устроены дисковые пилы. Их собирают всегда в том месте, где может быть поставлена платформа. В зависимости от нюансов конструкции такие изделия могут иметь жесткое или подвижное основание. Все составные части могут быть демонтированы. Чтобы заготовка не сдвигалась во время работы, ее зажимают в тиски с упором. Режущая насадка в виде диска делается из твердосплавных либо быстрорежущих марок стали.

В любом случае как диск, так и полотно или режущий круг должны приводиться в движение. Для этой цели используются электродвигатели. Их связывают с рабочими элементами через ременные либо зубчатые передачи. Второй вариант предпочтителен на мощных стационарных пилах. Если же пила по металлу относительно невелика и мобильна, скорее всего, на нее поставят ременную передачу. Иногда устанавливают сразу 2 режущих диска — это поднимает общую производительность пилы. Более того, инструмент с парой режущих элементов часто способен работать в автоматическом режиме.


























































