Особенности
Ворота являются важными защитными конструкциями. Они необходимы для каждого дачного участка. Подобные сооружения могут быть выполнены из самых разных материалов – дерево, металл, камень. Большинство людей в последнее время выбирают изделия из металла. Потребители считают именно эту основу самой прочной и надежной. Перед началом установки ворот необходимо продумать подробную схему будущих сооружений. Это позволит избежать ошибок при выполнении работы. Рисунок новых ворот и их оформление можно сделать без труда самостоятельно. Ведь металлические конструкции достаточно легки при монтаже.
Нередко владельцы загородных домов используют в металлических воротах специальные декоративные элементы из других материалов. Это сможет придать подобным сооружения красивый и оригинальный вид. Также часто эти конструкции дополняют необычной входной калиткой. Ее тоже можно выполнить с использованием небольших декоративных деталей. Некоторые дизайнеры рекомендуют выполнять металлические ворота с элементами ковки. Такой элемент прекрасно впишется почти в любой вариант оформления, без труда сможет сделать основу изящной и элегантной. Но следует помнить, что слишком перегружать этими деталями сооружение не стоит. Практически все металлические ворота первоначально покрывают специальным слоем полимеров. Такие вещества широко распространены на современном рынке строительных материалов. Смеси обязательны для нанесения на материал, так как они защищают его от вредного воздействия температур, коррозии, влаги и других внешних факторов.
Калитку лучше устанавливать с помощью секционных накладных петель. С помощью таких элементов вы сможете сделать конструкцию наиболее прочной, надежной и крепкой. Распашные ворота из металла не имеют видимых креплений. Это позволяет обеспечить дополнительную защиту территории. Любые металлические ворота состоят из нескольких обязательных элементов. К ним можно отнести:
- каркас – составляет основную часть;
- петли – обеспечивают крепление столбов и каркасных конструкций;
- столбы;
- обшивка – таким материалом оформляется каркас.
- запирающий механизм.
Особое внимание стоит уделить каркасному элементу. Сегодня специалисты могут предложить немалое количество разных типов таких основ – дерево, асбест, кирпич, бетон
Но наиболее прочной является именно металлическая конструкция. Столбы из металла достаточно легко устанавливать. Также этот материал является устойчивым к различным механическим повреждениям. Часто специалисты предлагают делать основную конструкцию металлической, а ее основание кирпичным или бетонным. Такой прием позволит придать сооружению дополнительную стойкость и надежность. Довольно часто владельцы собственных дачных участков используют ворота со встроенными автоматическими функциями. Конструкции с особыми поворотными механизмами являются очень удобными и надежными
Важно отметить, что подобные сооружения не потребуют от покупателя больших денежных затрат
На сегодняшний день перед потребителями существует огромное множество самых разных типов металлических ворот для дачной территории. К таким видам можно отнести:
- распашные двустворчатые ворота с калиткой;
- автоматические ворота;
- противопожарные ворота;
- сварные ворота;
- въездные ворота;
- выдвижные ворота.
Изготовление каркаса
Вначале необходимо рассчитать размеры, правильно нарисовать чертеж с размещением самых мелких деталей, сделать несколько эскизов с разных ракурсов, и только после точного расчета количества требуемых материалов, общих затрат приступать к сборке каркаса.
Определяя высоту будущих ворот, важно оставить внизу от 5 до 10 см до уровня грунта зазоры. Если на участке уложена плитка, асфальт, то просветы допускается уменьшать до 5 см
При отсутствии покрытия (если там растет трава) зазоры следует оставлять больше.
Каркас можно делать из дерева или металла. Деревянные элементы из-за ограниченного срока службы чаще всего применяются в качестве декора или для временного забора.
Схема каркаса для ворот из профильной трубы
Чтобы получить рамку, необходимо подготовить профильные трубы в таком количестве и размерах:
- 22 м профтрубы сечением 60*40 мм понадобится для основных деталей, перемычек. Элементы будут привариваться к столбам и отвечать за удержание всей конструкции.
- 15 м профтрубы сечением 40*20 мм – для усиления каркаса. К ним крепится обшивка створок.
Толщина металла должна быть не менее 1,5–2 мм. Для новичков сварочного дела лучше брать листы со стенками в 3 мм.
Важно понимать, что вес створок при покупке материала для рамки – ключевой фактор. Для габаритных изделий рекомендуем учесть такие моменты:
Для габаритных изделий рекомендуем учесть такие моменты:
- При массе створок до 150 кг хватит трубы сечением 80*80 мм, толщиной 4 мм.
- В диапазоне от 150 до 300 кг берется усиленный вариант сечением 100*100 мм, с толщиной стенок 5 мм.
- Для ковких и других тяжелых изделий весом свыше 300 кг нужно брать железные трубы сечением 140*140 мм, толщиной 5 мм.
Правильный порядок сборки каркаса описан выше в статье про распашные ворота из профнастила.
Совместно с калиткой

Если на схеме указано, что калитку придется встраивать в ворота, то необходимо обеспечить достаточное усиление каркаса. Поскольку установка в одной секции существенно утяжеляет конструкцию. Этот фактор учитывается и при выборе петель.
Без калитки
Калитка крепится как рядом с воротами, так и на существенной дистанции от них (на выбор хозяев). Нагрузка распределяется равномерно.
Основные этапы изготовления створок для ворот
2. Металлический профиль нарезается по заданным размерам.3. С каждого края полосы угольником проводятся линии под углом в 45°, а затем по ним делается срез с помощью болгарки. Для улучшения прочности сварных швов места среза тщательно зачищаются до чистого металла.
Разметка стыков профиля
4. Профили воротины раскладываются на ровной поверхности и плотно стыкуются по углам. Для закрепления конструкции можно использовать угловые струбцины (зажимами для фиксации). Чтобы воротину не «повело», перед сваркой следует проверить угольником правильность расположения профилей внутри конструкции, а затем снаружи. Горизонтальность поверхности выверяется с помощью уровня .

Проверка горизонтали и углов
5. С помощью рулетки также контролируется высота и ширина воротины. В случае ошибки проверяется правильность срезки углов и расположение каждой из деталей.
Совет. Если швеллер или профиль чуть прогнут, его можно выровнять молотком, предварительно прогрев металл над газовой горелкой.
Проверка высоты и ширины конструкции
6. После подгонки всех узлов швы по углам вначале прихватываются, а затем завариваются сплошным швом. Все места сварки зачищаются болгаркой с лепестковой насадкой. В дальнейшем перед покраской небольшие раковины (пустоты), образовавшиеся в местах швов, можно обработать автомобильной шпаклевкой.7. Далее пристыковываются поперечные перекладины под углом 90°. Чтобы ворота не «скрутило», кроме поперечных, для усиления жесткости в них должна быть устроена хотя бы одна диагональная перемычка. Определить угол ее сопряжения с профилем воротины можно только опытным путем: он зависит лишь от конструкции ворот.

Перекладины, идущие поперек воротины и по диагонали
8. Для навески ворот одна из сторон должна быть усилена с помощью небольшого отрезка из металлического уголка.
Усиление металлической полосы для приваривания петель
Монтаж опорных столбов

Эскиз монтажа металлических опор для въездной распашной группы
Может кто-то и думает, что самодельные въездные изделия в саду или на участке никогда не получатся аккуратными и красивыми. Но, как показала практика, если подойти к изготовлению со всей ответственностью и даже педантизмом, то можно своими трудами превзойти ту продукцию, которая предлагается на строительном рынке.
Сделанные ворота своими руками, будь они самые простые дачные, изготовленные из подручного материала, но правильно просчитанные и изготовленные строго по чертежу, будут необычные и уникальные.
Итак, строим, соблюдая размеры, расстояния и постоянно измеряем правильность всех углов, вертикалей и горизонталей.
В первую очередь следует установить опорные элементы, на которые будут повешены створки. В столбах из кирпича должны быть предусмотрены закладные элементы. К ним приваривается одна часть петель.
Если сделать опоры садовых ворот предполагается металлическими, то их следует обязательно укрепить. Для этого пробуривают лунки на глубину 80 – 120 см, дно лунки засыпается песком или щебнем, по уровню устанавливаются столбы, закрепляются деревянными или металлическими распорками, заливаются цементным раствором и утрамбовываются.
Другие элементы комплекта
Основное в конструкции – это балка и каретки. Делается из металлической пластины ограничитель для удержания створки. Если ворота большие, то ограничитель с 4 роликами. Для стандартных ворот достаточно 2 ролика.
Уловители используются для фиксации после закрывания. Изготавливаются из вогнутых пластин
Важно правильно подобрать толщину металла
Резина и пластик являются главными материалами, которые используются для заводских заглушек. Самодельные заглушки изготавливаются из подручных материалов. Можно концы просто заварить при помощи сварки.
Возможно, самостоятельно изготовленная конструкция будет не настолько красивая, но зато обойдется намного дешевле, чем при приобретении заводских изделий.
Разновидности
После того как осуществлен выбор материала, следующим шагом будет выбор типа конструкции. Какие же бывают виды ворот для частного дома?
Въездные ворота в частный дом, фото которых находятся ниже, могут быть:
- сдвижными;
- распашными;
- откатными;
- подъемными;
- механическими.
Сегодня более всего распространены две разновидности — распашные и раздвижные.
Распашные конструкции
Эти ворота, картинки которых можно найти в Интернете, являются, пожалуй, самым древним решением. Конструкция их чрезвычайно проста. Они представляют собой две створки, которые с помощью прочных петель крепятся к опорным столбам. Преимущества у них следующие:
- простота установки;
- простота ухода.
Основной минус заключается в наличии площади для их открывания. Кроме того, должны быть предусмотрены стопоры, поскольку во время сильного ветра створки могут повредить корпус въезжающего автомобиля.
Раздвижные
Главный плюс такой конструкции состоит в том, что для открывания не требуется площадь. Однако имеются и свои недостатки, а именно:
- Сложность монтажа.
- Потребность в большем уходе по причине сильной нагрузки на мелкие детали.
- Склонность к выходу из строя из-за таких факторов, как ржавчина и пыль.
Ворота из профнастила своими руками: чертежи и схемы
Любое строительство или изготовление конструкции невозможно без чертежа или хотя бы эскизного рисунка с чётко обозначенными размерами. Поэтому для изготовления ворот из профнастила своими руками чертежи, схемы просто необходимы, и без них никак не обойтись. Определившись с местом расположения объекта и произведя замеры, на листке бумаги, вспоминая школьные уроки черчения, следует нанести основные параметры будущей конструкции. За основу можно взять готовый проект ворот, который несложно найти в интернете и внести собственные изменения и размеры.
ФОТО: гаражные-ворота72.рфЭскиз конструкции простых распашных ворот с отдельно расположенной калиткой из профильной трубы
ФОТО: master-style.com.uaЭскизный проект ворот и калитки с двухсторонней обшивкой листами профнастила
ФОТО: roomester.ruЧертёж каркаса полотна откатных ворот
Как сделать ворота своими руками
Самое время поговорить о том, как самому сделать ворота. Прежде, чем приступить к работе, потребуется изучить схемы и чертежи, приобрести материал, а также все необходимые инструменты — сварочный аппарат, шуруповёрт, болгарка, рулетка, а также бур для установки конструкции.









Определившись какие сделать ворота, новичку легче будет работать с профнастилом — лёгкий материал, простой в работе и, что немаловажно, так же долговечен, как и какой-либо другой
Особое внимание уделите несущей трубе, а также глубине её установке.


В целом, все эти советы больше являются ответом на вопрос — как сделать откатные ворота. Начинайте всегда с каркаса, полотна обычно монтируются отдельно.

Составьте план действий, не спешите с выполнением. При работе с металлом можно сделать много ошибок, которые исправить не так то и просто.

Советы по выбору материала

Трубы применяемые для изготовления столбов и воротных створок
Выбор материала имеет прямое отношение к размеру въездной группы, весу конструкции и многих других факторов, включая природные.
Но по утверждению специалистов, для рамы створок чаще используют профильную трубу сечением 60*40 мм, где толщина металла 1,5 – 2 мм. Может подойти и труба с сечением 40*20 мм, все зависит от веса обшивки.
Сечение трубы для опорных столбов тоже зависит от веса конструкции, но лучше руководствоваться знаниями специалистов, которые утверждают:
- для общего веса створок, не превышающего 150 кг можно использовать трубу с сечением 80*80 мм и толщиной металла 4 мм;
- выше 150 кг и до 300 кг – желательно применять трубу 100*100 мм с толщиной 5 мм;
- выше 300 кг, применяется труба 140*140 мм, с толщиной 5 мм.
Относительно петель, можно выбирать любые механизмы – регулируемые или нерегулируемые, но материал, из которого они изготовлены, должен быть качественный, чтобы механизмы смогли выдерживать вес створок ворот, сделанных самостоятельно.
Роллеты и секционные ворота

Этот вид ворот для гаража, по сути, металлические утепленные жалюзи, которые сматываются в рулон. Полотно состоит из вертикальных или горизонтальных ламелей, которые наматываются на вал и убираются под потолок или сдвигаются в сторону.
Рулонные ворота в гараж подходят только для охраняемых помещений, так как основной их недостаток – от воров и взлома они не защитят. Конечно, есть и дорогие пуленепробиваемые конструкции, но цена таких ворот очень высокая.
Какие достоинства у роллет:
- можно установить в гаражах, жестко ограниченных по площади;
- за два часа можно установить всю конструкцию в проем любой геометрии;
- вес ворот минимален;
- поломанную ламель легко заменить;
- можно оборудовать автоматикой, противопожарной сигнализацией и датчиками движения.

К сожалению, недостатков у роллет много:
- если ширина проема больше трех метров надо устанавливать две секции;
- установка калитки обойдется в тридцать процентов от цены;
- защиты от взлома у конструкции нет;
- при морозе створки примерзают к направляющим, нужен подогрев каркаса;
- механизм подъема требует профессионального ремонта.
Такие ворота устанавливают в гаражах на охраняемых стоянках или в металлических боксах во дворе частного дома. Для утепленных отапливаемых гаражей конструкция не подходит.
Распашные
Наиболее простым и привычным видом ворот являются распашные ворота. Как правило, они состоят из двух створок, раскрываемых наружу или внутрь. Такие ворота изготавливают из самых различных видов материалов.

Преимуществом таких ворот является их простота и невысокая стоимость.
Недостатком может стать необходимость обеспечения свободного пространства для открытия створок.
Конструкции
Чтобы сделать простейшую конструкцию ворот из профлиста, понадобятся 2 распахивающиеся створки на крепком основании. В качестве опоры, на которой с помощью петель они крепятся, необходимо использовать стальные трубы – прямоугольные, круглые или Т-образные, которые углубляются в землю с заливкой бетонного фундамента. Рама ворот может быть с верхней горизонтальной перекладиной или без нее. В первом случае весь каркас получится более жесткий, но тогда будет ограничение по высоте и во двор не смогут заезжать высокие машины.
Створки ворот, кроме самой рамы, имеют перемычки для придания большей жесткости. Они могут быть расположены горизонтально, наискосок или крестообразно, какую схему изготовить, зависит от предпочтений хозяина. Главное, чтобы их было достаточно для жесткой конструкции, например, при высоте 2 м достаточно установить пару горизонтальных перемычек на одинаковом расстоянии от краев рамы.
Основание, на которое крепится рама ворот из профнастила, может быть изготовлено в виде массивных столбов из облицовочного кирпича, бетона или бута. В этом случае вся конструкция приобретает совершенно другой внушительный вид и становится намного прочнее. А профилированный лист сочетается практически с любыми строительными материалами.
Металлический запор для таких двухстворчатых ворот устанавливается с внутренней стороны в нижней части створок. Он предназначен для фиксации ворот в закрытом положении.


Замок для распашной конструкции можно выбрать из нескольких вариантов. Простейший вид – это металлический шпингалет, который можно найти в любом строительном магазине или изготовить самому из подручных материалов. Другой способ надежного закрытия – это сдвижной запор из петель и оцинкованной задвижки с ручкой. Если не хочется мудрить, то есть возможность просто приварить к створкам с внутренней стороны две петли и повесить на них походящий навесной замок.
Интересным решением будет проект автомобильных ворот со встроенной калиткой. Такая конструкция позволит сэкономить место для проема в заборе, но каркас будет иметь более сложный вид. Для калиточной рамы в одной из створок надо делать дополнительные вертикальные перемычки, стоит заранее создать подробный чертеж с размерами и рассчитать всю нагрузку.


Одностворчатые распашные ворота для машины делают редко: на одну большую створку приходится слишком большая нагрузка. Да и открывать их сложнее, поэтому лучше использовать традиционный вариант.
Оригинальны идеи раздвижных автомобильных ворот из оцинкованного профиля, которые для открытия-закрытия двигаются в вертикальной плоскости вдоль забора. Сложность заключается в том, что для них надо установить направляющие рельсы и приварить ролики для движения, а для мягкого хода использовать пружины или амортизаторы. Зато открывать их будет легко, они экономят свободное пространство.


Раздвижные ворота примечательны тем, что их легче сделать автоматическими, чем распашные. Достаточно монтировать электрический привод и подключить его к подвижному механизму. Работу можно обеспечить полностью дистанционным вариантом и открывать/закрывать ворота, не выходя из машины, что особенно удобно в непогоду.
Достоинство раздвижных ворот состоит еще и в том, что для них достаточно одной створки. Надо просто сварить раму из металлического профиля, добавить ребра жесткости и обшить каркас профлистом.
Симпатичную конструкцию ворот из профлиста можно создать, повесив над ними небольшую крышу или арку из того же материала. Кроме красоты, она будет еще и полезной – защищать замок, запор и другие металлические детали от дождя.
Как выбрать материал?
Чтобы выбрать, из чего будут изготовлены ворота, нужно определить их задачу, архитектурное направление и дизайн. Сразу стоит сказать, что деревянные и металлические изделия создаются одинаково – разница лишь в дальнейших характеристиках. Несколько рекомендаций, как правильно подбирать обшивку.

К примеру, для автоматики лучше подбирать легкий материал, вроде поликарбоната – тогда они будут хорошо открываться и закрываться. В качестве древесины, выбирайте дуб – это наиболее прочная порода.

Также хорошо будет смотреться сочетание металла и деревянного композита. Очень необычно будут смотреться ворота из дерева, с коваными внедрениями. Фото распашных ворот покажут различные способы исполнения.

Складывающиеся ворота
Если участок мал, или ворота предусмотрены в самом его углу, нормальных откатных или раздвижных ворот там не поставить, но можно сделать складывающиеся. У них телескопическая створка, состоящая из нескольких фрагментов, которые складываются и открываются, как гармошка. Это довольно дорогие ворота, поэтому в частном домостроении они используются нечасто. Но они считаются очень надежными, и могут стать отличным выходом из сложной ситуации.
Узкая дорога, въезд в гараж на краю участка (откатные не получаются), до гаража 7.8 метров, распашные не закроются, если машина встанет перед гаражом. Обдумываю вариант со складными воротами.
Вот как реализовал эту идею участник нашего форума с ником mednagolov. На складной конструкции шириной 4 метра 20 сантиметров (для проезда грузовика) он остановился, потому что ворота предусматривались в углу участка – откатные там было не сделать, открытые распашные перегораживали бы дорогу, а подъемные – ограничивали высоту въезда.
Начал с установки столбов, толстостенная труба на 150, длиной 3м. Высота створок ворот 1,5 м. Под воротами просвет до земли в 15 см.
Установив столбы, наш пользователь гидроуровнем разметил горизонт. Створки сделал из профильной трубы 25*50 (горизонтальные) и 20*40 (вертикальные). Прихватками наживил на столбы полутораметровые вертикальные трубы. Горизонтальные приварил к вертикальным по всей длине ворот. Разметил на равные части и приварил остальные вертикальные трубы – получился каркас для ворот.
Затем приварил навесы, проварил весь каркас (кроме наживулек у столбов), прорезал болгаркой профтрубы над навесами и срезал наживульки.
Каркас складных ворот готов, осталось закрепить профнастил.
Эти ворота служат уже несколько лет и очень радуют своего владельца.
Раздвижные ворота
Из всех вариантов раздвижных ворот можно выделить три самых распространенных. Они бывают:
Наименьшей популярностью из этих разновидностей пользуются подвесные ворота. При их установке ограничивается высота проезда, так как сверху монтируется металлический профиль, на который подвешивается створка.
В регионах, где зимы холодные и снежные не стоит устанавливать откатной вариант ворот. Для их полноценного использования придется постоянно очищать их ото льда и снежных заносов, что не всегда удобно. В остальном подобные конструкции довольно хороши, они не требуют большой площади для полного открывания.

Совсем несложно изготовить откатные ворота своими руками. Чертежи, фото и видео материалы помогут разобраться с особенностями монтажа таких конструкций. Для откатных ворот нужно предусмотреть свободное пространство вдоль забора. Примерные размеры створки приведены на рисунке.
На поверхности земли оборудуется специальный рельс или профиль, по которому створка будет передвигаться с помощью специальных роликов. В верхней части также устанавливаются роликовые элементы и дополнительные скобы, которые будут придерживать полотно при передвижении.

Раздвижные ворота на роликах
Расчет и сварка рам

Процесс зачистки сварных швов въездного изделия
Пока раствор застывает, можно приступать к изготовлению рам. Здесь без сварки не обойтись. Строго по размерам отрезанные трубы, с помощью сварки соединяются между собой
Важно процесс сварки проводить на специальном столе или на ровной поверхности, чтобы не получился перекос
Сварка должна проходить поэтапно. Сначала прихватываются все детали в нескольких местах, затем, проверяется правильность сварки по диагонали и по углам, если все предельно точно, то можно приступать к чистовой сварке.
Если для изготовления садовых ворот применяются ржавые трубы, то перед сварочными работами желательно очистить их от ржавчины. Тогда швы получатся более ровные и качественные.
После сварки следует тщательно зачистить все швы, покрыть рамы грунтовкой, дождаться полного высыхания и покрасить.
Для стандартной рамы понадобится следующий материал:
- периметр рам и перемычки можно изготовить из трубы 60*40 мм. В общей сложности нужно будет приобрести 22 м;
- внутренний каркас для усиления рам изготавливается из трубы 40*20 мм, для него понадобится 15 м. На этот внутренний каркас и будет крепиться обшивка.
Поскольку трубы продаются в погонных метрах, то лучшим вариантом будет заказать нужные размеры, соответствующие размерам схемы. Такой подход имеет двойную выгоду – не нужно будет в домашних условиях замерять и отрезать нужную длину, а также упростится доставка.
Материал
Материал для изготовления распашных ворот может быть разным, все зависит от архитектурного направления и дизайна будущей конструкции.
Самыми распространенными материалами для создания универсальных распашных ворот являются металл и дерево. От выбранного материала зависят характеристики готового изделия: их прочность и надежность. Рассмотрим достоинства и недостатки основных материалов, используемых для изготовления распашных ворот.


Плюсы использования профнастила:
- обладает высокой прочностью, не поддается внешним воздействиям;
- отличается невысокой ценой;
- текстура полотна однородная, поэтому нет необходимости подбирать рисунок на материале;
- материал прост в монтаже, для установки конструкции достаточно обычного набора инструментов;

- профнастил не боится влаги и не подвержен коррозии (ржавчина может возникнуть только вследствие повреждения защитного слоя материала);
- разнообразие оттенков позволяет подобрать вариант на любой вкус;
- характеризуется длительным сроком эксплуатации.

К минусам можно отнести невысокую устойчивость к механическим повреждениям, большую парусность и нагревание материала под воздействием высоких температур.
Профнастил изготавливается холодным методом из стали с оцинкованным или алюминиевым напылением. В качестве декоративного покрытия используются полимерные материалы. Толщина листа может быть от 0.4 до 1 мм.

Плюсы и минусы дерева:
- древесина отличается более низкой ценой;
- для изготовления распашных конструкций из дерева достаточно стандартного набора инструментов;
- процесс изготовления занимает немного времени (единственный длительный этап – застывание бетона);
- готовое изделие отличается приятным дизайном.
К минусам относят небольшой срок эксплуатации, низкий уровень механической прочности, пожароопасность.


Менее популярными, но не менее надежными являются распашные конструкции из профильной трубы. Она может иметь несколько видов сечения: прямоугольное, круглое, квадратное и овальное. Для изготовления труб используется прочная углеродистая или оцинкованная сталь. Нержавейка считается более легким материалов, поэтому ворота, изготовленные из данного материала, не смогут выдержать большие нагрузки.
Для создания прочных и надежных конструкций отлично подойдет горячекатаная труба. Они представляют собой каркас из труб и створки, дизайн которых может быть самым разнообразным. Не уступают в прочности и стальные трубы. Используя их, можно сэкономить на расходе материала и удешевить изделие целиком.


Цельные металлические листы больше подходят для обустройства гаражей. А вот для ограждения больших территорий применяют глухие деревянные створки, сделанные из дуба, ели, сосны. Полотна из профнастила или поликарбоната применяют для изготовления автоматических конструкций, так как они производятся компактными листами, за счет чего можно снизить время создания изделия и уменьшить объемы порезки.


В зависимости от выбранного материала, различают несколько видов распашных конструкций:
- сварные ворота из профлиста или профтрубы;
- пленочные ворота из ПВХ;
- складчатые ворота из сэндвич-панелей.


Установка ворот из профнастила своими руками
Распашные ворота – самая простая и распространенная конструкция ворот, используемая на частных земельных участках. Ворота из профлиста легко сварить и установить своими руками, имея даже минимум инструментов и навыков, нужно лишь четко следовать инструкции.
Стандартные распашные ворота состоят из двух опор и двух створок, которые соединяются между собой и закрываются на замок, задвижку или при помощи другого фиксатора.
ворота из профнастила. Чертежи
Чтобы приступить к изготовлению ворот, нужно составить чертежи ворот из профлиста, рассчитать количество необходимых материалов, крепежа и правильно подобрать инструменты. Мы рассмотрим как устанавливаются ворота на стандартный 4-хметровый проездной проем.
Чтобы сварить опорные столбы для ворот потребуется толстостенная труба 60х60х3х3000 мм. Сечение трубы можно выбрать любое, оно не влияет на качество опор и подбирается только исходя из их доступности.
Для каркаса ворот потребуется труба прямоугольного сечения 40х25х2х6000 мм. Из нее варим прямоугольные рамы, к которым в будущем будет крепиться профнастил. После того, как рамки готовы, их прикрепляют на воротные петли к установленным столбам. В месте смыкания створок предусматривается запорное устройство.
После установки конструкции можно приступить к покраске каркаса ворот. Для этого зачищаем поверхности при помощи болгарки, покрываем грунтовкой в 2 слоя и краской такого же цвета, как выбранный профнастил для обшивки. Ту часть столбов, что будет находиться под землей, необходимо покрыть гидроизоляционной краской, чтобы защитить от коррозии при соприкосновении с влажной землей.
Столбы устанавливаются в подготовленные, пробуренные отверстия в грунте и бетонируются бетоном М200 или М250. Глубина фундамента для ворот из профлиста должна быть не менее 1,5 метров и диаметром от 25 см. Чтобы избежать перекоса ворот по прошествии некоторого времени, можно дополнительно соединить столбы монолитным бетонным ригелем.
После того как бетон высохнет, рама каркаса ворот с лицевой стороны зашивается профнастилом с нахлестом равным ширине одной волны. Об этом нужно помнить при расчете количества необходимых материалов. В качестве крепежа используются кровельные саморезы или заклепки из стали, чтобы избежать коррозии в месте соприкосновения разных металлов.
В последнюю очередь устанавливается запорное устройство. При необходимости наносится краска на поврежденные при монтаже места ворот.
ворота из профнастила своими руками. Видео
Конструкции
По типу откатные (сдвижные, раздвижные) ворота бывают:
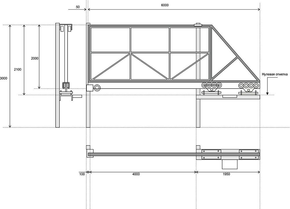
Консольными — с балкой, один конец которой закреплен, второй висит в воздухе. Балка имеет П-образный профиль со ступеньками внутри. По ней внутри перемещаются ролики. Вся нагрузка от дверного полотна через ролики передается на балку.

Консольные ворота с нижней балкой
По месту ее расположения они бывают:
- с нижней балкой;
- средней балкой;
- верхней балкой.
Подвесные. В этой конструкции тоже есть балка, но она опирается на оба столба по сторонам от ворот. Она тоже имеет особое строение, похожее на букву «П» только с загнутыми внутрь краями. Внутри также имеются ролики, на них висит полотно ворот. Так полотно и перемещается.
Секционные ворота
Одним из привлекательных вариантов являются секционные гаражные ворота. Они имеют следующие особенности:
- включают в себя несколько секций, которые соединены между собой при помощи специальных металлических петель;
- смещаются по направляющим, плавно переходя из вертикального положения в закрытом виде в горизонтальную поверхность при их открывании;
- в открытом виде они находятся под потолком и не требуют дополнительного места.

Такая конструкция экономит место перед воротами и внутри гаража. Она обладает достаточной прочностью и позволяет ее использовать фактически в любом гараже.

Основные виды ворот с калиткой
Прежде необходимо сразу оговорится: ворота с калиткой могут быть выполнены как два независимых элемента, расположенных рядом, либо как единая конструкция, т.е., ворота с калиткой внутри одной из створок.
В любом случае, калитка представляет собой, как правило, «прозрачный» элемент и, в зависимости от материала, а также технологии ее изготовления, различают следующие основные ее виды.

Деревянные
Наиболее простые, от того – популярные, могут быть легко сделаны самостоятельно. Внешний вид полностью зависит от вкуса и возможностей мастера. Недостаток – недолговечность и малая механическая прочность.

Сварные металлические конструкции
Также достаточно популярный вариант, при этом сварная калитка является надежной, имеет значительный запас прочности и при правильном уходе может служить долгие годы.


Стоимость такой калитки превышает цену деревянной, если конечно последняя выполнена не из ценных пород дерева, однако все-таки является вполне приемлемой.

Кованные калитки
Это наиболее дорогой вариант, однако, художественная ковка позволяет получить несравненно лучший результат, при этом калитка будет надежной, прочной и долговечной.

Самостоятельно изготовить такую конструкцию можно только при наличии специальных навыков и оборудования, не применяемого в домашнем хозяйстве. Именно цена и сложность делают такие калитки редкими на практике.


























































